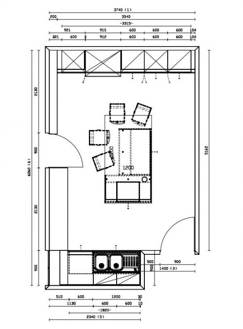
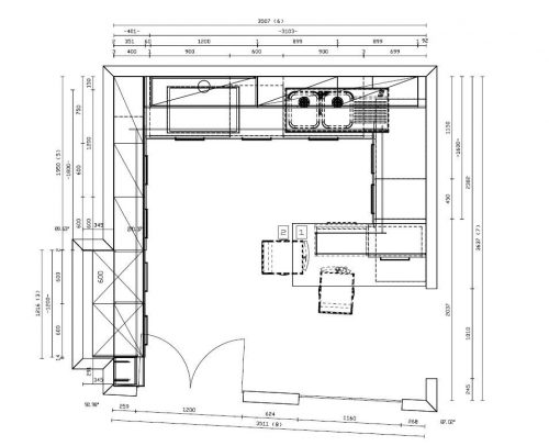
PROGETTO CUCINA ERNESTOMEDA ICON AIR VERSIONE LACCATA + ROVERE TERMOTRATTATO Progettazione | Cucine |